habitatge a BELLAVISTA

obra nova - residencial

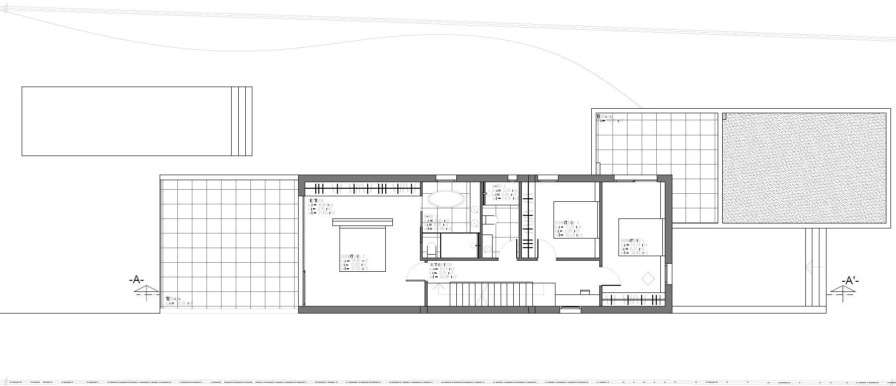
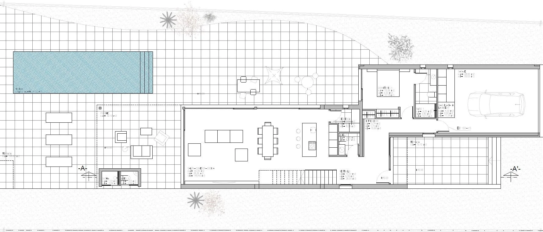
El projecte s’integra en la parcel·la adaptant-se a les seves característiques topogràfiques i d’entorn. L’estratègia principal consisteix a difuminar la frontera entre l’interior i l’exterior mitjançant una planta baixa altament permeable, que afavoreix la continuïtat espacial i visual. Els materials utilitzats responen a la tradició constructiva i als recursos propis de l’àmbit mediterrani, amb l’objectiu d’aconseguir una arquitectura arrelada al lloc. Finalment, la coberta es resol amb una terrassa mirador que permet gaudir de les visuals privilegiades sobre la badia.

situació: c/Randa, Bellavista

promotor: privat

fase: projecte bàsic

any: 2025

imatges: vallnadal-arquitectes

Anterior
Anterior

Ca'n Buc

Siguiente
Siguiente

Habitatge a Caimari